Delhi Street, Kings Cross, London, N1 £1,119.23 pw  (£4,850 pcm)   Tenancy Info

4 1 1

4 Bedroom House  To Rent £1,119.23 pw  (£4,850 pcm)   Tenancy Info

Spacious 4 Double Bedroom House

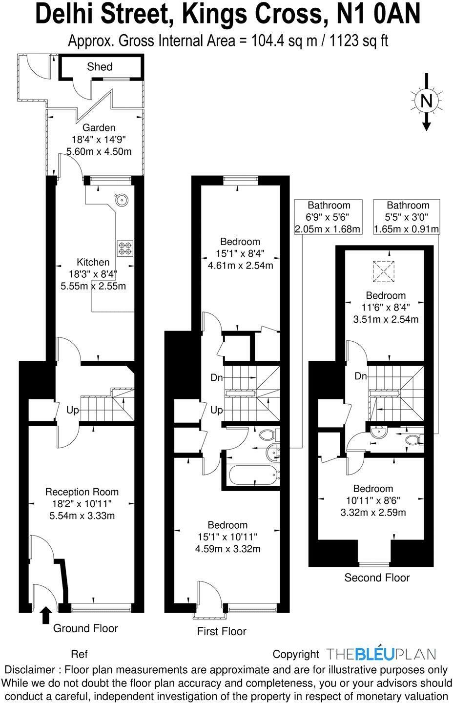
Arranged over 3 floors

Large Reception Room

Separate Eat-in Kitchen

All Good Sized Double Bedrooms

Bathroom with Additional WC

Private Garden

Located close to Kings Cross Station

Security Deposit £5,596.15

A spacious four double bedroom House arranged over three floors with front and rear gardens located moments from Kings Cross St. Pancras International and the amenities of Granary Square.

The property consists of large eat-in kitchen, good sized separate reception room, four double bedrooms, bathroom, additional WC, lots of ample storage and private rear garden with storage shed and additional front garden area.

The house is superbly located for access to Kings Cross/ St Pancras International, offering excellent transport links not only around London, but also nationally and with trains to mainland Europe. The amenities of Granary Square are within easy reach as is the new shopping centre 'Coal Drops Yard' plus easy reach of Regents Canal.

Location

Floor Plan

Floor Plan 1

Property Images

Photo 1
Photo 2
Photo 3
Photo 4
Photo 5
Photo 6
Photo 7
Photo 8
Photo 9

Arrange a Viewing

Arrange a Viewing

IMPORTANT NOTICE

Descriptions of the property are subjective and are used in good faith as an opinion and NOT as a statement of fact. Please make further specific enquires to ensure that our descriptions are likely to match any expectations you may have of the property. We have not tested any services, systems or appliances at this property. We strongly recommend that all the information we provide be verified by you on inspection, and by your Surveyor and Conveyancer.

Fees

Refundable Holding deposit Capped at 1 weeks rent

Security Deposit Capped at 5 weeks rent for annual rental under £50,000, or 6 weeks rent for annual rental over £50,000

Rent The agreed monthly rent

Changes to tenancy Capped at £50 inc VAT

Early termination charge Not exceeding the landlord’s financial losses

Late payment of rent Interest of 3% above BoE base rate for each day the rent is late, once it is 14 days overdue

Replacement keys Reasonable costs or give the tenant the option to purchase themselves

Utilities, council tax, communication services, TV Licence etc Tenants own responsibility unless otherwise stated in contract